Total Living Concepts for the 3rd Year in a Row has been awarded the ‘Excellence in Kitchen Renovation’ by the Simcoe County Home Builders Association. For our Project “Alpine Kitchen”
Dive into the Details of the Alpine Kitchen Renovation:

Before Kitchen
This project was more than a makeover; it was a transformation geared towards making the kitchen the heart of home entertainment. The original island lacked essential storage and had impractical seating. Our design team tackled these issues head-on.
Celeste, our lead designer, spearheaded a creative solution. We expanded the kitchen into the adjoining master bedroom. This clever adjustment provided the necessary space to enhance functionality without compromising the kitchen’s aesthetic appeal.

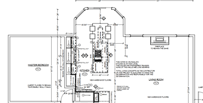
Detailed Floor Plan
To help our clients, Jane and Don, visualize the end result, we provided detailed renderings and design drawings. Seeing the potential layout alleviated their concerns and built trust in our process. Our three decades of expertise in kitchen renovations reassured them further, confirming their choice in us.
We partnered with renowned cabinetry experts Miralis and Artcraft for this project. Their high-quality materials played a pivotal role in bringing our designs to life. Alongside our skilled installation team, we transformed the initial concept into a stunning reality.

A Rendering of the Project before Completion
The renovation did not just meet our high standards—it set new ones. It showcased our ability to blend functionality with elegance, creating a space perfect for both cooking and hosting.
Learn more about our path to winning this prestigious award and explore how we can elevate your kitchen into a model of excellence. Visit Total Living Concepts to see how we transform ordinary spaces into award-winning kitchens.

The Finished Project – Alpine Kitchen – Excellence in Kitchen Renovation 2023